2023-01-02调温工业除湿机
工业的调温功能工业上用的除湿机分为调温式和不调温式的两种。现在我们就说说这种调温式除湿机的功能。工业上用的调温除湿机有三种类型,一种是通过降温除湿的,一种是通过升温除湿的,还有一种是通过调湿除湿的除湿机。先说升温式的除
了解详情安诗曼电器
手机:133-6050-3273
微信:133-6050-3273
地址:广东深圳坪山区青松西路8号鸿合科技园

工业的调温功能工业上用的除湿机分为调温式和不调温式的两种。现在我们就说说这种调温式除湿机的功能。工业上用的调温除湿机有三种类型,一种是通过降温除湿的,一种是通过升温除湿的,还有一种是通过调湿除湿的除湿机。先说升温式的除
了解详情
调温型除湿机适合高温环境中使用,在一些温度变化比较大,温度比较高的场合下,使用调温型除湿机的话,对于降低环境内温度和湿度会有比较显著和良好的效果,给我们的生产和工作带来的极大的方便。调温型除湿机的湿装置由除湿蛋和承座组成。所谓除湿蛋,就是一种多孔的,透气较好的的陶瓷外壳
了解详情
调温型除湿机具有自动调控温湿度的功能,还可以制冷除湿,特别适合用于变化比较大的高温高湿的环境,能有效降低室内湿度,还可以自动检测湿度,带来了很大的便利。1.调温型除湿机具有多种功能,能适应变化较大的高温高湿的环境。调温型除湿机能自动调温、降温除湿功能,调温除湿机集除湿,制冷功效于一身,且制冷能力可调
了解详情
调温除湿机适用于高温环境。在温度变化很大且温度相对较高的某些情况下,调温除湿机将对降低环境中的温度和湿度具有显着的良好效果。我们的生产和工作带来极大的便利。调温除湿机的湿装置由除湿蛋和轴承座组成。所谓的除湿蛋是多孔,通风良好的陶瓷壳。除湿鸡蛋的内部是一个装有吸收空气和水蒸气的物质的容器。部分涂有湿度
了解详情
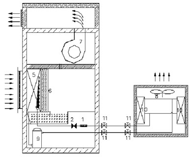
1.2.2第二模式(图4)在该模式中,从压缩机出来的制冷剂分成两路:一路进入冷凝器C2,另一路进入旁通路,而后通过冷凝器C2的制冷剂和旁通路的制冷剂汇合后再通过冷凝器C1。在管路上安装一电子三通调节阀来调节通过冷凝器C2和旁通路的制冷剂流量。当截止通过C2的制冷剂,让所有的制冷剂通过旁通路直接通过C
了解详情
1:在搬运和安装过程中,其倾斜度不得超过45。更不允许倒置。应轻起轻放,防止损坏机组和擦伤表面。2:本机组安装地基要求水平,元特殊防震要求,只要垫100mm厚木板或10ram厚普通工业橡胶即可。机组四周离
了解详情
调温型除湿机是一种除湿时可在一定范围内调节出风温度的冷冻式除湿机。调温型除湿机出风温度一般不能在最低值到最高值之间连续变化,即有部分温度范围是出风温度无法达到的。在调温除湿模式下,对于传统的调温型除湿机而言,即使室外风冷冷凝器的风机或水冷冷凝器水泵流量增至最大,室内冷凝器的散热量也非常可观。热湿比,
了解详情
调温除湿设备用蒸发器来给空气降温除湿,并回收系统的冷凝热,弥补空气中因为冷却除湿时散失的热量,是一种高效节能的除湿方式,已经广泛应用于国防工程、人防工程、烟草及石化行业、地铁车站、航天领域净化工程、实验室、电讯器材室、档案室、食品房、制药或胶片车间、特种玻璃制造、粮食、木材等的除湿干燥和高湿空间
了解详情
摘要分析调温除湿机中双冷凝器不同连接模式下的不同调温方式和调温效果,并对各模式进行比较。关键词调温除湿串联并联电子调节阀Theanalysisofdifferentconnectmodesoftwocondensersofdehumidifierwithtemperatur
了解详情
除湿器价格永远是客户选择产品的重要因素,在当今社会,高价与成交似乎很难形成一体,同时出现。如果除湿器的好质量,廉价格,高口碑,应用广,销售工作自然很好做。而实际情况却是恰恰相反,所谓“鱼与熊掌不可兼得”,似乎价格与质量永远都只能成正比,因此客户总是在质量和价格之间徘徊,以求找到两者之间的平衡
了解详情
在这个诡谲多变的时代,除湿机厂家必须习惯于在不同的环境和情势下竞争,这增加了对除湿机厂家适应能力和发掘机会能力的要求。毫无疑问,没有什么竞争优势是A的,成功也只是暂时的,所以除湿机厂家永远都需要保持高度的反应能力。当战略变得愈来愈弹性化并且充满变数,人才管理体系也必须随之而动。如何使员工培训达到预期
了解详情
作为加湿器企业的管理者,创意是成功的关键。那么为什么需要创意呢?《易经》告诉我们:这个世界变是唯一不变的规律。现在的市场营销已经过了墨守成规的时代了,而人云亦云,鹦鹉学舌的做法也早已被市场所淘汰。那么加湿器厂家在市场竞争中就必须要求营销人员创意性的
了解详情
人无信不立,业无信不兴,国无信则衰。诚信是中华民族的传统美德,是社会主义核心价值观的重要内容,是公民基本道德规范,是社会主义市场经济的基础。不管是作为企业,还是作为个人,都要坚守内心崇高的诚信原则。让诚信观念在每个人心中永驻,并且化为实际行动,成为企业文化建设的重要内容。对于企业,就需要平台来监督自
了解详情
诚信为本,除湿机企业应拒绝低价恶性竞争新闻资讯:在国内除湿机行业的发展历程中,不知是曾几何时,打价格战已逐渐成了除湿机企业之间市场竞争的唯一利器;为了抢占更大的市场份额,总有那么一些除湿机企业想方设法降低成本,甚至不惜牺牲产品质量和服务,“技术创新”在除湿机领域成了奢侈的代名词。但如今随着众多除湿机
了解详情
世界卫生组织报告显示,由于空间密闭的因素,室内污染空气的浓度常常比室外严重二至三倍。城市中的现代人平均80%左右的时间要在室内度过。相比窗外看得见的雾霾,对健康影响更大的,其实是室内空气。这种污染主要有物理、化学、生物污染三种类型。空气物理污染主
了解详情
“每一天,西安人都要和我们雄峰印刷打交道。”西安雄峰印刷包装有限公司总经理王志华指着展架上一排排中国著名企业的商标和包装,自豪地说给记者听:“西安人每天都要喝牛奶和果汁吧,西北市场上‘伊利’、‘汇源’,包括本地最大的银桥乳业的包装都是我们印刷的;西安人爱喝啤酒,‘青岛’、‘汉斯’也都是我们的客户,接
了解详情
食品工厂潮湿怎么办?解决食品工厂潮湿问题,用安诗曼工业除湿机!在我国因为人口基数大,因此食品这类的消耗品有着很大的市场,每天我国都有大量食品被消费者所食用。因此我国的食品加工行业有着巨大的消费群体,这也促进了我国食品行业的发展。食品行业专家提醒食品厂家食品最为关键的因素是安全,只有食品的安全得到保证
了解详情
解决地下室潮湿问题,你需要一台安诗曼除湿机。对于像地下室这样的高湿场所而言,防潮工作必然是要做的。在每年降雨量较多的季节里,地下室就会出现受潮现象,相对湿度均在80%左右。一般主要体现在地面积水、墙壁有水珠等现象。加上地下室通风效果不好,因此潮湿的环境很难在短时间内排除。这对很多居
了解详情
小编了解到,每年的4—10月是蜈蚣等毒虫出没的活跃时期,这段时间南方各个地区都经常下雨,很潮湿,气温相对也还比较高,正是蜈蚣喜欢的环境,出没活动也会比较多。尤其是老小区的底楼住户,要更加注意厨房、厕所、墙角、床下等阴暗潮湿的地方,有必要的时候,可以撒些生石灰阻止蜈
了解详情
为了孵化一个蛋,自然在保持正确的条件方面做得很好。但是在一个商业蛋孵化场的人工环境中,孵化场经理的工作就是确保所有的条件都尽可能完美,以确保每批蛋的优质雏鸡的最大产量。温度和空气流量不仅关键,湿度在整个过程中也起着至关重要的作用。小鸡孵化场湿度水平预孵保存:最多7天70-80%RH,以减少脱水的风险
了解详情